|
erstellt 31.10.2023, zuletzt aktualisiert 19.01.2026
Video Neuer Turbogenerator mit Heilsteinen 8413751682868246344(1)(1)(2).mov
Turbogenerator für Palladium Gold Rhodium Platin Iridium
  
CEVAT-Rettungsplatine
Die Vorgeschichte:
Ein Genie entdeckt die Lüsterklemme und den Joghurtbecher
Bildquelle: Cevat-Video

Fertig! Sein Gerät TURBO 5.0

Damit geht er auf den Internet-Markt. TURBO 5.0 für 100,-Euro.

Doch die Entwicklung ist nicht aufzuhalten. Es folgt CEVAT Modell TURBO 6.0 für 69,-
Euro. (man beachte das weiterhin klar überschaubare Prinzip: ES IST NICHTS
drin, im Kästchen, außer einem Widerstand, verborgen im Stück schwarzen
Isolierschlauch)

Fazit: Das Gerät hat keinerlei geregelte Funktion. Es setzt eine ungeregelte
Elektrolyse in Gang, deren Silberabscheidung nicht berechenbar ist. Es gibt auch
keine Anleitung dazu, außer, dass man dem Destillierten Wasser etwas von einer
guten "Quelle" hinzufügen soll. Der Meister verrät jedoch nicht, wo
man "eine gute Quelle" findet.
Gleichgültig, wie gut oder schlecht "die
Quelle" ist: Diese gefährliche Empfehlung erzeugt mit
Garantie giftige Silbersalze. Man darf dem Destillierten Wasser keine Fremdstoffe hinzufügen und vor allem keine
Mineralien, wie sie in Quell- oder Leitungs- und Mineralwasser enthalten sind)
Der Umbau zu einem Gerät "mit Funktion"
Basis ist eine "Reparaturplatine für CEVAT TURBO 6.0".
Mit den wenigen Bauteilen kann man eine zwar einfache, aber dennoch "richtige"
Funktion bewirken.

Die Bauteile werden von der Platinenunterseite gesteckt und auf der
Oberseite verlötet. Die Drahtenden werden flach abgeschnitten.


Letzte aktuelle Platinenversion vom 09.11.2023

Gehäusebearbeitung u. Einbau
Als erstes wird eine 5mm Bohrung für die Leuchtdiode zwischen die vorhandenen
Bohrlöcher im Deckel gebohrt. (es sei denn, man verzichtet auf die Leuchtdioden-Anzeige der
Funktion)


Um den Kontakt der Platine zu den Steckbuchsen für die Silber-Elektroden zu
gewährleisten und auch um den Höhenunterschied auszugleichen, werden je Schraube
2 Stück 4mm Zahnscheiben aufgelegt.

Danach kann das Gehäuse geschlossen werden.

Der relativ einfache Schaltplan der Reparaturplatine:

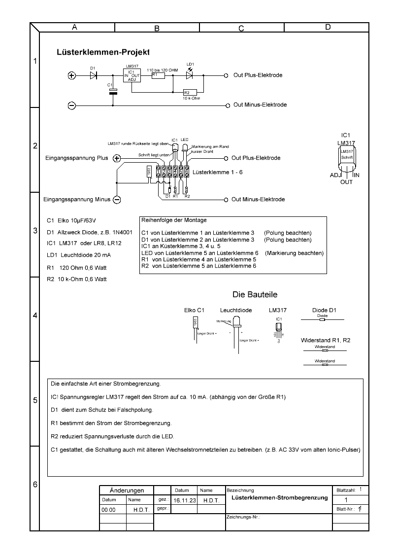
Der Schaltplan oben als Lüsterklemmen-Projekt:

Messungen am Prototypen: Die hier angegebenen Spannungs- und Stromwerte
beziehen sich auf den geprüften Prototypen und sind nicht als feste Vorgaben
für einen Nachbau zu verstehen, denn sie werden von den Toleranzen der Bauteile
bestimmt. Und diese führen immer zu geringfügig anderen Werten.
Diode
D1 (1N4007) schützt vor falscher Polung der Betriebsspannung. Die Schaltung
arbeitet allerdings auch mit Wechselspannung, wenn C1 (10µF/63V) eingesetzt
wird. IC1 (LM317) mit R1 (120R) reguliert den Elektrodenstrom konstant auf 10
mA (beim Prototypen wurden 10,38 mA gemessen)
Der Elektrodenstrom fließt
über die Leuchtdiode LD1 zur Plus-Elektrode und von dort über die Elektrolyse
(Destilliertes Wasser) zurück zur Minus-Elektrode. (LD1 20mA
Standard-Leuchtdiode grün, 5mm).
An der Strombegrenzung mit IC1 (LM317)
und an der Diode D1 (1N4007) fällt ein Spannungsverlust von etwa 1,5V an,
welcher an den Elektroden zu einer verminderten Elektroden-Spannung führt.
Durch einen Parallelwiderstand zur LED (R2 10k) wird der Spannungsver-lust
ausgeglichen, den eine Strombegrenzung samt Leuchtdiode verursacht. Bei
Eingangsspannung von 24 VDC steigt damit die Leerlauf-Elektroden- spannung (ohne
Belastung) von 21,2V auf 22,7V. Dies gilt auch bei Verwendung anderer
Leuchtdioden mit höherer Durchlassspannung, wie etwa einer Blauen LED mit
Durchlassspannung von 3,5 Volt. Auch bei dieser erhöht sich durch R2 die
Leerlaufspannung um 1,5 Volt.
Bei Verwendung einer Schottkydiode (SB160)
für D1 kann der Spannungsverlust um weitere 0,4 Volt vermindert, bzw. die
Leerlauf- spannung erhöht werden.
Wie schon erwähnt, wird die Schaltung durch
Hinzufügen von C1 (10µF/63V) auch für den Betrieb mit Wechselspannung
eingerichtet. Dann kann die Schaltung sowohl mit Gleichspannung, als auch mit
Wechsel-spannung arbeiten. Bei 33VAC zum Beispiel ergibt sich eine
Leerlauf-Elektrodenspannung von 50,5V. (Effektivwert aus 33V AC x Wurzel 2)
Der Elektrodenstrom bleibt dabei konstant bei 10 mA. (Prototyp 10,38mA)
Die Elektrodenspannung darf nach gesetzlichen Vorgaben ("Kleinschutz-spannung")
eine Spannung von 60 Volt DC nicht überschreiten. Eine möglichst hohe
Elektrodenspannung ist lediglich für das Startverhalten der Elektrolyse
erforderlich, weil zu Beginn der zunächst hohe Widerstand des Destillierten
Wassers zu überwinden ist. Durch die Silberabscheidung sinkt dieser elektrische
Widerstand bereits von Anfang an immer weiter ab. Das ist schon nach Sekunden
und spätestens Minuten gut messbar. Somit kann die maximale zur Verfügung
stehende Elektrodenspannung "hinter einer Strombegrenzung" nur "ohne
Belastung" im Leerlauf gemessen werden.
Stückliste, Reichelt
C1 Artikel-Nr.: RD1J106M05011180
0,04 Euro
D1 Artikel-Nr.: 1N 4007
0,02 Euro
IC1 Artikel-Nr.: LM 317 LZG
0,38 Euro
LD1 Artikel-Nr.: 5003G6D-EHB-S
0,09 Euro
R1 Artikel-Nr.: METALL 120
0,11 Euro
R2 Artikel-Nr.: METALL 10,0K
0,11 Euro
Die rechtlichen Hinweise: Eine Anleitung zur Bedienung und Anwendung
wird lediglich für Privatanwender mit Sachkunde gegeben. Alle Schäden hat dieser
selbst zu verantworten.
Das Gerät entspricht NICHT der CE-Norm und es
wird ausdrücklich keine CE-Konformitätserklärung abgegeben. Das Gerät darf
kein CE-Zeichen tragen und auch nicht nachträglich damit versehen werden.
-------------------------------------------------------------
Impressum:
©
April/2005 by HANS-DIETER TEUTEBERG • hans-dieter.teuteberg@t-online.de
Illustrationen
© H.D.T.
|